Gerse Károly

Kazánok

2., javított kiadás


2.2.3.1. Gázturbina utáni hőhasznosító kazánok

A hőhasznosító kazánok legjelentősebb alkalmazása a gázturbinákból kilépő füstgázok hőjének hasznosítására, úgynevezett kombinált (gáz-gőz) ciklusú körfolyamatok megvalósítására szolgál. Az ilyen kazánok kialakítását alapvetően meghatározza a hőhasznosítás célja. A legnagyobb számban villamosenergia-termelés céljából létesítenek kombinált folyamatokat. Ezen belül is különbséget lehet tenni a rendelkezésre álló gázturbina kilépő hőjének legnagyobb hatékonyságú hasznosítására kifejlesztett alkalmazások és a meglévő erőmű gőzparamétereihez illeszkedő alkalmazások között. Az előbbiek rendszerint többnyomású körfolyamathoz optimalizált, többnyomású kazánokat igényelnek, míg az utóbbiaknál általában egynyomású, esetenként a megcsapolásos tápvíz-előmelegítőket is kiváltó kazánokat alkalmaznak. További eltérést eredményezhet, hogy a kívánt gőzparaméterek, teljesítmény a hulladékhővel önmagában biztosíthatók-e, vagy szükség van póttüzelésre. Általánosságban elmondható, hogy a gázturbinák belépő hőmérsékletének növelésével a póttüzelés iránti igény erőműi alkalmazások esetén csökkent. Ipari alkalmazásoknál ugyanakkor a gőzigény gázturbina-kiesés esetén történő megszakításmentes biztosítására, külön kialakított tűztérbe beépített, frisslevegős tüzelőberendezések létesítésére is sor kerülhet.
A hasznosítható hőmennyiség a gázturbinából kilépő füstgázmennyiségtől, ennek hőmérsékletétől és a füstgázösszetételt figyelembe véve megengedett lehűtési hőmérséklettől függ. A könyv összeállítása idején a kombinált gáz-gőz körfolyamatoknál alkalmazott gázturbinák kilépő hőmérséklete ~700 °C körül van, a hőhasznosító berendezés után a tüzelőanyag kéntartalmától függően 90–140 °C kilépő hőmérséklet szokásos. A minimális érték kénmentes földgáz tüzelőanyag esetén 75 °C. A gőz- és ezzel a kombinált körfolyamat hatásfoka szempontjából hőhasznosító kazánoknál is minél nagyobb nyomásra, hőmérsékletre kell törekedni. A berendezés költségei szempontjából a minél kisebb, minél olcsóbb anyagból készíthető fűtőfelület jelenik meg igényként. A két ellentétes elvárás a füstgáz és a munkaközeg közötti hőmérséklet- különbség optimalizálását igényli.
 
Jellemző hőmérséklet-különbségek: A kazánban kialakuló hőmérséklet-különbségek közül kiemelt jelentősége van az elgőzölögtető felület utáni füstgázhőmérséklet és a telítési hőmérséklet különbségének (hőfokrésnek), amelyet az angol elnevezés után a gyakorlatban „pinch point”-nak (2.176. ábra) nevezünk. Minél kisebb ennek értéke, annál nagyobb nyomást lehet elérni, de csak nagyobb fűtőfelület, drágább berendezés rovására. Optimális értéke a körfolyamat hatásfoka, az értékesített villamos energia ára, mennyisége és a beruházási, valamint tőkeköltségek figyelembevételével számítható [2.128], így a várható piaci viszonyoknak is függvénye. Szokásos értéke 10–30 °C, de kivételes esetekben 6 °C hőmérséklet-különbséget is alkalmaznak.
A pinch point nagyságának hatását egy 25 MW teljesítményű gázturbina után kapcsolt 40 bar nyomású, 350 °C frissgőz-hőmérsékletű hőhasznosító kazánra a [2.131] irodalom alapján a 2.177. ábra mutatja (a 100% értékek a 28 °C tervezési hőmérséklet-különbségnek felelnek meg). Látható, hogy a termelt gőzmennyiség a hőmérséklet-különbséggel arányosan változik (a füstgáz állandó nyomáson számított fajhőjének változásától eltekintve), a fűtőfelület nagyságának változása az 1/x függvény változását követi (a felület számítására szolgáló képletben a logaritmikus hőmérséklet-különbség a nevezőben van). A költségek változása a felület méretének változásánál lényegesen kisebb, miután a kazán gyártásához felhasznált anyagok, a gyártás mennyisége csak részben függnek a fűtőfelület nagyságától.
 
2.176. ábra. Hőhasznosító kazán hőmérséklet-lefutása [2]
 
A pinch point mellett további két jellemző hőmérséklet-különbséget is megkülönböztetünk [2]: mennyire közelíti meg a frissgőz hőmérséklete a füstgáz belépő hőmérsékletét (túlhevítő- (TH) megközelítés, nemzetközi gyakorlatban superheater approach), illetve a tápvíz-előmelegítő utáni közeghőmérséklet a telítési hőmérsékletet (tápvízelőmelegítő-megközelítés, economizer approach). Előbbi jelentősége erőművi berendezéseknél a hőhasznosító kazánok belépő füstgázhőmérsékletének növekedésével csökkent (értéke jelenleg ≥40 °C), kisebb berendezéseknél 20–30 °C a szokásos érték. Az ekó-megközelítés a tápvíz-előmelegítőbeli elgőzölgés veszélyének megítélése szempontjából fontos. Ugyanis a gázturbina utáni hőhasznosító kazánok jelentős részénél nem tartják be a 2.2.2.7. fejezetben kiemelt szabályt, a víz a csövekben nem felfelé (az esetlegesen keletkező gőzbuborékok távozását elősegítve), hanem lefelé áramlik, így mindenképpen el kell kerülni a gőzfejlődést. Erre tekintettel az ekó hőmérséklet-különbség értékére 6–15 °C szokásos. Esetenként, a kényszerátáramlású nagy nyomású fokozatok tápvíz-előmelegítőinél, értékét 0-ra csökkentik [1].
 
2.177. ábra. A nyomásváltozás hatása a hőmérséklet lefutásra [2.131]
 
Hőmérleg: A 2.176. ábra a hőhasznosító kazánokban lejátszódó hőmérséklet-változások jellemző ábrázolási módját – a füstgázoldali hőmérséklet-változásból a füstgáz fajhőjének és tömegáramának felhasználásával kiszámított hőleadás függvényében a füstgáz és vízoldali hőmérsékletek változását – mutatja. Miután a füstgáz hőleadása a kazán határolófalain jelentkező hőveszteségtől eltekintve azonos a vízoldali hőfelvétellel, a füstgáz- és vízoldali hőmennyiségek és ezzel a hőmérsékletek között egyértelmű kapcsolat van. Egy adott gázturbinából kilépő füstgáztömegáram, a hőhasznosító kazánból kilépő füstgázhőmérséklet, frissgőzparaméterek és gőznyomás esetén a maximálisan előállítható gőztömegáram a hőveszteség és a túlhevítési hőmérséklet szabályozását szolgáló, esetleges tápvíz-befecskendezés elhanyagolásával a következő hőmérlegből számítható ki:
 
(2.161)
 
ahol
a gázturbinából kilépő füstgáz tömegárama [kg/s],
a füstgáz közepes fajhője [kJ/(kgK)],
a gázturbinából kilépő füstgáz hőmérséklete [°C],
az elgőzölögtető nyomáshoz tartozó telítési hőmérséklet [°C],
a telítési hőmérséklet-különbség (pinch point) [°C],
a maximális gőztömegáram [kg/s],
a frissgőz (fajlagos) entalpiája [kJ/kg],
a telített (az ekó hőmérséklet-különbség figyelembevételével, aláhűtött) folyadékentalpia [kJ/kg].
 
A hőmérleget a hőhasznosító kazán egyéb fűtőfelületeire is az előbbiekkel azonos módon kell felírni. Az esetben, ha a vízoldalon két vagy több különféle felület kerül párhuzamosan elhelyezésre, hőáramukat össze kell adni. A hőveszteséget a nagyvonalú számításoknál a füstgázoldalon leadott hőmennyiség 1%-ával lehet figyelembe venni.
 
A gőzparaméterek hatása, optimális felületelrendezés: A kilépő gőzparaméterek a gőzteljesítményre, a vízoldali hőmérséklet-lefutásra és a távozó füstgázhőmérsékletre is lényeges hatást gyakorolnak. Miután a gázturbinák utáni vízgőz-körfolyamatoknál a megcsapolásos tápvíz-előmelegítés a hőbevezetés átlaghőmérsékletét csökkentheti [2.128], a tápvíz előmelegítését és a gáztalanító működéséhez szükséges gőztermelést is a hőhasznosító kazánban indokolt megoldani, a tápvíz gyakran kondenzátor (tápszivattyú) utáni hőmérsékleten (30–40 °C) lép be a kazánba. Ennek ellenére, mint azt a 2.178. ábra mutatja, nagyobb nyomások mellett egy nyomásfokozatú kazánban a füstgáz megengedett minimális hőmérsékletre történő lehűlését nem lehet megoldani. Az ábrán megfigyelhető, hogy a nyomás megfeleződése ellenére, azonos frissgőzhőmérséklet esetén (a víz fizikai jellemzőiből adódóan), a füstgáz a 40 °C belépő tápvízhőmérséklet ellenére alig hűthető le jobban a 80 bar, mint a 160 bar nyomású kazánban (a kilépő füstgázhőmérséklet 160–170 °C körül van).
 
2.178. ábra. A nyomásváltozás hatása a hőmérséklet lefutásra
 
A kilépő füstgázhőmérséklet csökkentésére és ezzel a hőhasznosítás javítására megoldást a kisebb frissgőz gőzhőmérséklet melletti nagyobb gőztermelés és ebből adódó nagyobb lehűlés vagy több nyomás alkalmazása jelenthet. Utóbbi az első nyomásszint teljesítményét nem csökkenti, hiszen az egymást követő nyomásszinteken csak az előző fokozatokban már nem hasznosítható füstgázhő kinyerése történik. Ez nem teljesül olyan esetekben, amikor a második nyomásfokozatban fejlesztett gőzt keverik a gázturbinában már expandált gőzzel, és úgynevezett túlhevítő-fokozatba vezetik, amely vagy a legnagyobb nyomású túlhevítő elé, vagy azzal párhuzamosan kerül beépítésre.
Az előzőekből megállapítható, hogy a gázturbina utáni hőhasznosító kazánok konstruktőrei kevésbé szabadok a hagyományos kazánokhoz viszonyítva. Az utóbbiaktól eltérően a hőhasznosító kazánoknál a felületek elrendezése, az optimális közegparaméterek meghatározása is a rendelkezésre álló füstgáz hőmérséklete, mennyisége, az alacsony hőmérsékletű korrózió elkerülésére megengedett harmatpontja figyelembevételével, a gőzkörfolyamat maximális teljesítményére (ezzel a kombinált körfolyamat maximális hatásfokára) optimalizált számítások alapján történik. Így a kazánkonstruktőr feladata az előírt paramétereket biztosító fűtőfelületek legkisebb költséggel, elvárt üzembiztonsággal teljesítő méretezése, anyagválasztása és elrendezése.
Jelenleg az erőművi célra fejlesztett, legjobb hatásfokú kapcsolások három (nagy, közép, kis) nyomásszintet tartalmaznak, de az irodalom négy nyomásszintről is említést tesz [2]. Egy háromnyomású berendezés [2.139] hőmérséklet-lefutását a 2.179. ábra mutatja. A nyomásszintek az ábrázolt berendezésnél: 125, 53, 5,8 bar. A frissgőz és az újrahevített gőz hőmérséklete ~535 °C, az újrahevítés a nagy nyomású részkörfolyamat átlagos hőbevezetési hőmérsékleténél – a gőzturbina nagy nyomású részéből kilépő és a középnyomású fokozatban termelt telített gőz összekeverésével kialakuló – nagyobb értékről indul. A nagy nyomású túlhevítő és az újrahevítő egymással párhuzamosan, azonos füstgázhőmérséklet-tartományba van beépítve. A nagy nyomású fokozat tápvíz-előmelegítője két szakaszra van osztva, közöttük helyezkedik el a középnyomású elgőzölögtető, a kis nyomású túlhevítő. A kis nyomású túlhevítő gőzárama a gőzturbina kis nyomású házba vezető átömlő vezetékébe kerül bekeverésre. A középnyomású fokozat tápvíz-előmelegítője a nagy nyomású tápvíz-előmelegítő kisebb hőmérsékletszintre épített szakaszával párhuzamosan van beépítve. A következő fűtőfelület a kis nyomású elgőzölögtető, amelynek vízpótlása gáztalanító utáni hőmérsékletű tápvízzel történik. Ezt a gáztalanító fűtését, illetve a gáztalanítóba vezetett tápvíz kellő előmelegítését szolgáló fűtőfelületek követik. A legutolsó, tápvíz-előmelegítő fűtőfelületek falhőmérsékletének, a kondenzáció elkerülésre, még savas kémhatású gőzöket nem tartalmazó füstgázok esetén is nagyobbnak kell lenni a füstgáz harmatpontjánál. Az egyes nyomásfokozatokat általában külön tápszivattyúk táplálják.
 
2.179. ábra. Háromnyomású hőhasznosító kazán hőmérséklet-lefutása [2.139]
 
A fűtőfelületek sorrendje más korszerű hőhasznosító kazánoknál is közel azonos. Eltérést a frissgőz- és az újrahevített gőz túlhevítők hőmérséklet-szabályozási céllal történő több fokozatra osztása, a túlhevítő, újrahevítő füstgázoldali sorba kapcsolása, a gáztalanító-fűtés, a gáztalanítót megelőző tápvíz-előmelegítés eltérő megoldása jelenthet. Erre egy példát majd a 2.184. ábra kapcsán mutatunk be.
 
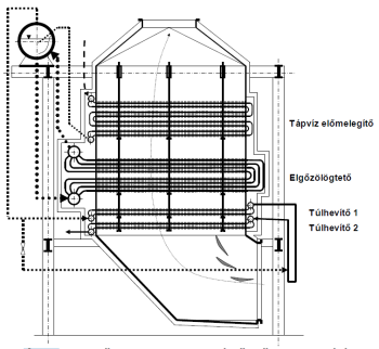
A gázturbina utáni hőhasznosító kazánok elrendezése: Miután az alkalmazások egymáshoz nagyon hasonlóak, ugyanakkor a teljesítmények, paraméterelvárások lényegesen különbözhetnek, típuselemekből álló típusberendezések alakultak ki, amelyek építőkocka-elv alapján állíthatók össze. A helyszíni lehetőségeket, konstrukciós előnyöket, hátrányokat, vevői igényeket, gyártói szokásokat figyelembe véve alapvetően kétféle szerkezettípust alkalmaznak: a vízszintes, fekvő vagy a függőleges, álló elrendezést (2.180. ábra).
Az előbbinél a gázturbinából kiáramló füstgázok vízszintesen áramlanak át a csökkenő hőmérséklet szerint elrendezett fűtőfelületeken, majd a külön alapozott kémény felé távoznak. Az elgőzölögtető felületeken a fűtött emelő- és fűtetlen ejtőcsövek alkalmazásával a kellő geodetikus magasságból adódóan természetes cirkuláció alkalmazása szokásos. A fűtőfelületek az alsó irányelterelések, kamrák megfelelő kialakításával az alapra erősített acélkeretre támaszkodhatnak, a kazándobok a nagy átmérőjű ejtőcsövekre vagy az elgőzölögtető csőkötegre, külön állványzatra általában nincs szükség. Esetenként a kazándobok és a kazán tetején elhelyezett gáztalanító táptartály, kezelőjárdák alátámasztására mégis alkalmaznak állványzatot.
 
2.180. ábra. Vízszintes, függőleges elrendezés
 
A függőleges elrendezésnél a gázturbinából kilépő füstgáz iránytöréssel lép a hőhasznosító kazánba, amelyen függőlegesen felfelé áramlik át. A fűtőfelületek az állványzatra támaszkodó, felső szinten elhelyezett gerendázatra vannak felfüggesztve, a kazándobok az állványzaton támaszkodnak. A kémény az állványzaton áll. Így nagy teherbírású állványzatra van szükség. Az elgőzölögtető csőrendszer megfelelő kialakításával függőleges elrendezésnél is megvalósítható a természetes cirkuláció, az esetek többségében azonban kényszerített keringtetést alkalmaznak. Különlegességként meg kell említeni, hogy a füstcsatornák megfelelő vezetésével megoldható a hagyományos kazánok második huzamában megszokott, a fűtőfelületek kialakítása szempontjából kedvezőbb, felülről lefelé történő füstgázáramlás [2.129], illetve – a keringtetőszivattyúval biztosított cirkuláció helyett – az ekóból kilépő tápvízzel működtetett serkentett cirkulációt is alkalmaznak [2.130].
A két elrendezést összehasonlítva: az előbbi nagy helyigényével szemben az utóbbi lényegesen kisebb helyigénye és nagy állványzati költsége áll. Európában korábban elsősorban a függőleges elrendezést alkalmazták, de a gyártók a vevők igényei alapján mindkét berendezéstípust építik [2.171].
 
A fűtőfelületek anyaga: A kis hőmérséklet-különbségek miatt a gázturbinák utáni hőhasznosító kazánoknál a felületek méretének csökkentésére bordázott csöveket építenek be. Erre az is lehetőséget ad, hogy az egyéb kazánoknál az elgőzölögtetők, túlhevítők környezetében jelentős lángsugárzás a gázturbinák utáni hőhasznosító kazánoknál hiányzik, a hőátadás, a fűtőfelület hőmérséklete jól számítható, a felületek túlhőmérséklet miatti meghibásodásával nem kell számolni. A gyártók nagyon sokféle cső- és bordamérettel, osztással készítenek bordás csöveket. Hőhasznosító kazánokhoz 80, 100, 118, 150, 200, 250 db méterenkénti bordaszámmal, 5–25 mm bordamagassággal, 1–2 mm bordavastagsággal gyártott bordázott csöveket ajánlanak. A választékból leginkább a 31,8, 38, 48,3, 51, 57 mm csőátmérő, 150, 200 db/m bordaszám, 15–20 mm bordamagasság, 1,3–1,5 mm bordavastagság alkalmazása szokásos. A bordák a csőre a bordaszámnak megfelelő menetemelkedéssel csavart, kívánt vastagságú és szélességű folytonos vagy egyenletes távolságra bevágott, esetleg háromszög alakban kivágott, a magcsőhöz folyamatosan hegesztett acélszalagból készülnek. Előbbi folyamatos (sima), utóbbi úgynevezett szegmentált bordázatot eredményez. Utóbbi hőátadási tényezője a nagyobb turbulenciából adódóan mintegy 25%-kal jobb, ugyanakkor nagyobb áramlási veszteséget okoz.
A csövek és a bordák anyagát az alkalmazási hőmérséklethez választják. Csőként a szokásos ötvözött, ötvözetlen acélminőségek kerülnek alkalmazásra. Bordaanyagként általában szénacélt (a reveállósági határig), kivételes esetben ötvözött acélt használnak. A hagyományos kazánokhoz viszonyított kisebb nyomások miatt a hőhasznosító kazánoknál a csőanyagot általában nem a csőfalban ébredő feszültség – optimális falvastagság kapcsolatrendszer, hanem a szerkezeti anyagra megengedett alkalmazási hőmérséklet határozza meg [1]. A csövek falvastagsága 3 mm-nél nem lehet kisebb. A túlhevítők kilépő fokozatainál a jelenlegi nagyobb hőmérséklet-különbségek sima csövek alkalmazását is lehetővé teszik. Póttüzelés esetén bordás csövet csak akkor célszerű alkalmazni, ha sima csöves fűtőfelületekkel a füstgázt már annyira sikerült lehűteni, hogy a számított maximális bordahőmérséklet nem lesz nagyobb 500 °C-nál [2.131].
 
Soros, sakktáblás csőelrendezés: A gázturbinák utáni hőhasznosító kazánoknál a csőelrendezést alapvetően a megengedhető nyomásveszteség (~20–25 mbar, amelynek növelése csökkentheti a felületek méretét, ezzel a kazán költségeit [2.134], de jelentősen csökkenti a gázturbina teljesítményét), illetve a füstgáz lebegőanyag-tartalma határozza meg. Konstrukciós szempontból célszerű minél sűrűbb, sakktáblás csőosztás alkalmazása, mivel ennél (mint részletesen az 5. fejezetben ismertetjük) nagyobb a hőátadási tényező, másrészt ugyanakkora térfogatban nagyobb fűtőfelület helyezhető el, igaz, nagyobb füstgázoldali nyomásveszteséget eredményezve. Ugyanakkor szennyezett füstgáz (pl. esetleges koromtartalom) esetén az elrakódás megelőzésére soros csőosztást kell alkalmazni, és a csőkötegek közé megfelelően elosztott koromfúvókat is be kell építeni. A füstgázoldali nyomásveszteség minimalizálása is soros csőosztást tesz szükségessé. Ez estben növekszenek a kazán méretei, költsége. Így gazdasági számítással, a várható kihasználást is figyelembe véve kell eldönteni, hogy a többletteljesítmény megéri-e a többletköltséget. A méretnövekedés mellett soros csőosztásnál a rezgésveszély is nagyobb [2.131].
 
A fűtőfelületek merevítése, felfüggesztése: A függőleges elrendezésnél a csöveket 2–2,5 m-enként, egyenletes távolságra elhelyezett, ~12 mm vastag acéllemezből készített csőtartó falak támasztják alá [2.131], amelyek a csövek meghibásodása esetén azok cserélhetőségét is lehetővé teszik [1]. A csőtartó fal hosszirányú elmozdulást megengedő méretű furatában egyidejűleg több borda támaszkodik fel, így a bordák vagy a cső esetleges megsérülésével nem kell számolni. Az elmozdulás lehetővé tételére a csőtartó fal és a csövek eltérő hőtágulása miatti befeszülés, az ebből adódó esetleges deformáció megelőzésére van szükség. A füstgázjáratokat a csövek végén elhelyezett csőtartó falak (2.181. ábra) határolják le. A vastag lemezből készített csőtartó falak nemcsak alátámasztják a csöveket, hanem a füstgázhuzamot függőlegesen elválasztott csatornákra is felosztják, merevítik a csőkötegeket, így megváltoztatják a saját frekvenciát, csökkentve vagy megakadályozva ezzel a csövek, határolófelületek rezgését, az esetleges rezgés miatti zajképződést.
Gyártás, megbízhatóság szempontból az a legkedvezőbb, ha a fűtőfelületeket minél hosszabb, varrat nélküli csőszakaszokból állítják össze. A csőgyártók által szállított szokásos maximális csőhossz 15 m, de az irodalom 19–20 m fűtött csőhosszúságot is említ [1]. A nagyobb csőhossz lehetővé teszi a fűtőfelületek szélességének csökkentést, így rövidebb kamrák (esetleg kazándobok) adódnak, ami kisebb anyagfelhasználást, gyártási időigényt (pl. kevesebb kamrabekötőcső-varratot), ezzel költséget eredményezhet. A helyszíni szerelés időigényének, költségének minimalizálásra és az elvárt minőség biztosítására maximális gyári előreszerelésre, blokkosított kialakításra kell törekedni. Ennek érdekében a fűtőfelületeket szállítható méretű, (max. 3,5 m szélességű, 2–2,5 m-nél nem magasabb), max. 100 t [1] tömegű részegységekbe kell elrendezni. Az egyes részegységek csőtartóit az egymáshoz kapcsoláshoz, felfüggesztéshez, merevítéshez szükséges elemekkel is el kell látni. A (jelenleg 9–10 m-t nem meghaladó) teljes kazánszélesség több, párhuzamosan elhelyezett blokkból alakítható ki.
 
 
A kazán összeállítása az állványzat felállításával, a függesztőgerendázat elhelyezésével kezdődik. Erről emelőköteleket vagy -rudakat lelógatva először a legfelső fűtőfelületet (a párhuzamos blokkokat egymás mellé helyezve) függesztik fel, majd ezt megemelve a csőtartó falelemeket – az üzem közbeni eltérő hőtágulásból adódó eltérő méretváltozások követésére – csuklósan, rudakkal összekapcsolva az alatta következőt. Az egyes blokkok a határolófelületeket, azok részelemeit is tartalmazhatják, így a fűtőfelületek összeállításával egyidejűleg a burkolat is összeállhat.
 
A kamrák elrendezése: Az egyes blokkok a be- és elvezető kamrákat is tartalmazzák. Ezek kialakításánál, elrendezésénél is a minimális helyigényre kell törekedni. A függőleges elrendezésű kazánoknál szokásos néhány megoldást a 2.182. ábra mutat. A füstjáraton kívüli kamráknál (2.182. ábra (a)) bal oldalon a szokásos túlhevítő, tápvíz-előmelegítő kamrák, jobb oldalon az elgőzölögtető kamra vázlata szerepel. A helyigény csökkentésére a hosszú csőkígyók helyett párhuzamosan kapcsolt csövek alkalmazhatók, a kamrák eltoltan helyezhetők el.
A 2.182. ábrán (b) vázolt, fűtött térben történő elhelyezést a helytakarékosság mellett a hőfeszültségek minimalizálása indokolja. A fűtött téren kívüli kamráknál ugyanis a kamrák felmelegítését a csövekből kilökődő, kiáramló közeg végzi, így a gázturbináknál szokásos gyors felfűtés esetén igen nagy hőfeszültségek alakulhatnak ki, ezek elkerülésére az indítást esetenként le kell lassítani. A hőfeszültségek csökkentésére részben megoldást jelenthet a jobb anyagminőségű, így kisebb falvastagságú kamra, ez azonban a költségeket jelentősen növelheti. A fűtött térben elhelyezett kamráknál a felmelegedés a külső fűtés és a csövekből kiáramló közeg hatására közel egy időben indul, így a járulékos terhelések lényegesen kisebbek lehetnek. A kamrákat természetesen a füstgázoldali hőmérsékletek, hőátadás figyelembevételével nagyobb falhőmérsékletre kell méretezni, de a kis hőmérséklet-különbségek miatt ez nem eredményez lényegesen nagyobb falvastagságot.
 
2.182. ábra. Kamrakialakítások vízszintes elrendezésnél
 
A kazánok szélességének csökkentése a kamrahosszak mentén kialakuló hőmérséklet-eltérések minimalizálást is elősegíti, ugyanis a keskeny füstjáratokban, keresztirányban nem alakulhat ki nagy hőmérséklet-különbség, így a fűtött közeg oldalon sem jelentkeznek nagy eltérések (úgynevezett pászmák). A füstgáz áramlási irányában hagyományos kazánoknál alkalmazott, többször hajlított csövekből álló, hosszabb csőkígyók helyett a kétoldali kamrákhoz csatlakozó hajlítás nélküli vagy egyszer hajlított, párhuzamosan kapcsolt hosszú csövek előbb említett, helytakarékosságot célzó alkalmazása viszont a névleges egyen-, ellenáramot inkább keresztárammá változtatja, ami a felületek hatékonyságát ronthatja.
 
Függőleges kazánszerkezet: Egy függőleges elrendezésű, egy nyomásfokozatú hőhasznosító kazán vázlatát a 2.183. ábra mutatja. Az ábrán a kazán előtti szerkezeti elemeket (diffúzor, esetleges „by-pass” kémény stb.) nem tüntettük fel. A gázturbinából a füstgáz kör keresztmetszeten, a nagy áramlási sebesség lelassítása, eközben a dinamikus nyomásváltozás statikus nyomássá alakítása érdekében diffúzorba lép ki. (A kör keresztmetszet könnyen merevíthető, jól követi a gázturbina üzemi tulajdonságaiból adódó gyors hőmérséklet-változásokat.) Ezt „by-pass” (hőhasznosító kazánt megkerülő) kémény esetén egy keresztdarab követi, amelyből a füstgáz a kémény előtti és a kazán előtt/utáni zsaluk ellentétes irányú működtetésével vagy a kéménybe, vagy a hőhasznosító kazánba kerül. A megkerülő kémény célja eredetileg a gázturbina üzemeltetési lehetőségének biztosítása volt a rosszabb rendelkezésre állásúnak feltételezett gőzturbinás körfolyamat üzemzavara vagy hőt is szolgáltató berendezéseknél a hőszolgáltatási igény hiányának idejére. A gyakorlati tapasztalatok alapján − újabban − erőművi berendezéseknél már nem építenek be megkerülő kéményt. A megkerülő kémény ugyanakkor lehetőséget biztosít arra, hogy egyrészt kisebb teljesítményigények esetén a gázturbina önállóan, gőzkörfolyamat nélkül, rosszabb hatásfokkal üzemeljen, másrészt a gázturbina indításánál a megkerülő kémény előtti füstgázzsalu fokozatos zárásával (egyidejűleg a kazán előtti/utáni zsalu fokozatos nyitásával) a hőhasznosító kazán lassúbb felfűtésére kerüljön sor. A kazán utáni zsalus záróelem abból a szempontból is fontos, hogy a kazán üzemszünete esetén megakadályozza az esetleges esővíz kazántérbe jutását vagy a kazán rövid, közbenső állásidő esetén történő lehűlését [2]. A hőhasznosító kazán a diffúzorhoz vagy a keresztdarabhoz a dilatációs hézagot lezáró, acélból készült, füstgáztömör, rugalmas kapcsolóelem közbeiktatásával csatlakozik. Az elem feladata, hogy a különféle üzemállapot-változások közötti, eltérő hőtágulásból adódó elmozdulás-különbségeket kiegyenlítse. Dilatációs hézagra, füstgáztömör lezárásra a keresztdarab és a diffúzor között is szükség van.
 
2.183. ábra. Függőleges elrendezésű hőhasznosító kazán
 
A kazán átmeneti idommal kezdődik, amely egyrészt a belépő keresztmetszet kazánkeresztmetszetre bővítésével lelassítja, másrészt irányeltereléssel vízszintes irányból függőlegesre fordítja a füstgázáramlást. Az ábrán nem tüntettük fel, de a kazán elé hangtompítót is be kell építeni, ennek elhelyezésére a gázturbinából való kilépés után a vízszintes csatornaszakaszba, kivételes esetben a fűtőfelületek elé, a függőleges szakaszba kerül sor. Az átmeneti darab az előforduló hőmérsékletnek revésedés nélkül ellenálló (szükség estén ausztenites [1]) acélból készül. A gázturbina kilépő nyomásának megfelelő, 35 mbarnál általában nem nagyobb nyomásra kell méretezni, merevítése külső bordákkal (gerendákkal) történik. A hőveszteség minimalizálására hőszigetelt. A hőszigetelést a nyomástartó burkolaton belül célszerű elhelyezni, a károsodás ellen az adott hőmérsékletnek, a várható hőmérséklet-változási sebességeknek, kopásnak ellenálló páncélzattal védeni. Mivel a külső bordázat a lemezből készült falnál lassabban melegszik fel, ezért esetenként – amennyiben ezt a hőmérsékletviszonyok megengedik – belső merevítést is alkalmaznak [2.131]. Az egyenletes füstgázeloszlás biztosítására indokolt irányelterelők beépítése. Az átmeneti elem vízszintes szakaszának (fenéklemezének) egy irányba lejtő, ferde kialakítása a kazánban kondenzálódó, csőmeghibásodásnál kifolyó vagy más okból bekerülő víz biztonságos elvezetését célozza.
A vázolt kazán a hőmérséklet szabályozhatósága érdekében két túlhevítő-fokozatot tartalmaz. A hőmérséklet szabályozása telített gőz bekeverésével történne. A gyakorlatban emellett mind a kazánba bevezetett [2.132], mind a már csaknem telítési hőmérsékletre felmelegített [2.130] tápvíz befecskendezését alkalmazzák. Az Európában jelenleg alig elképzelhető állandó terhelésre (zsinór üzemvitelre) tervezett kazánoknál a hőmérséklet-szabályozást elhagyják, inkább a fűtőfelületet az esetleges túlhőmérsékletek, hőmérséklet-egyenlőtlenségek figyelembevételével túlméretezik. A fűtőfelületek az egyenáramú kapcsolású elgőzölögtetőt kivéve ellenáramú kapcsolásúak, bár a kevés csősor miatt – mint arra már utaltunk – a kapcsolás inkább keresztáramúnak tekintendő. Az ábrán természetes cirkulációt vázoltunk, de a függőleges elrendezésű kazánok többségénél kényszerített keringtetést alkalmaznak, a keringési számot ≥4 értékre beállítva. Az ejtőcső aljára bevezetett, előmelegített tápvízzel serkentett cirkuláció [2.130] kivételnek számít. Kényszerített átáramlás alkalmazása esetén az elgőzölögtető felületek egyenáramú kapcsolása annyiban módosul, hogy a felületet két fokozatra osztva, füstgázirányban először az utóelgőzölögtető fokozatot (vízoldalon valószínűsíthetően a 3.13. ábrán vázolt hullámos, gyűrűs áramlással), majd ezt követően a belépő fokozatot (vízoldalon buborékos, dugós, tömlős áramlással) helyezik el.
A vázolt berendezésnél a felületeket a gyártás során célszerűen három (túlhevítők, elgőzölögtető, tápvíz-előmelegítő) blokkba lehet összeállítani, gyárban készre szerelni. A helyszínen ezek felemelése, egymásra függesztése, végleges magasságra emelése történhet. A fűtőfelületeket határoló függőleges füstcsatornát gáztömör kivitelben, bordákkal, rudakkal történő merevítésekkel, külső hőszigeteléssel kell kialakítani. A füstcsatornát felül merevített, hőszigetelt átmeneti idom zárja le, amely a kazán négyszögletes keresztmetszetéről a kémény méretének megfelelő átmérőre szűkíti le az áramlást. A blokkokba történő összeállítás a füstcsatorna részelemeinél is megtörténhet a gyártás során, esetenként arra is mód van, hogy beemelésük a fűtőfelülettel együtt történjen. A csőátvezetések rugalmasan, ugyancsak gáztömör kivitelben készülnek. A teljes kazánszerkezet és a határoló csatorna is a felső keresztgerendázatra van felfüggesztve, így hőmérséklet-változás esetén függőleges irányban a csövek, kamrák, határoló csatorna azonosan tágulnak, bennük járulékos hőfeszültség, az átmeneti üzemállapotoktól eltekintve, nem keletkezik. A vízszintes méretváltozás irányítására a felfüggesztőelemeket, csuklókat úgy kell elhelyezni, hogy a kazán vízszintes hossztengelye lehetőleg a gázturbina hossztengelyével azonos síkban maradjon. Arra is ügyelni kell, hogy a beömlő csonki dilatációs hézagnál jelentkező elmozdulások a rugalmas záróelem megengedett működési tartományában maradjanak. Az ábrán fel nem tüntetett kémény az állványzatra támaszkodik, az átmeneti idom kilépőcsonkjához dilatációs hézaggal, azt lezáró rugalmas elemmel csatlakozik.
 
Többnyomású kazán kialakítása: A gyakorlatban, mint arra utaltunk, általában többnyomású kazánokat építenek. Egy ilyen, függőleges elrendezésű kazán fűtőfelületeinek sorrendjét, kapcsolását a [2.126] alapján a technológiai gőzáramok, gőzvezetékek elhagyásával a 2.184. ábra mutatja. A nyomásszintek: 96,5, 25,0 és 6,0 bar. Az elgőzölögtetés mindhárom nyomásszinten kényszerített keringtetéssel történik. A frissgőz és az újrahevített gőz hőmérséklete azonosan 510 °C, a fűtőfelületek három fokozatra osztottak, a 2.179. ábrától eltérően nem párhuzamosan, hanem sorba kapcsoltak. (A párhuzamos kapcsolás a fokozatok váltott sorba kapcsolásával valósul meg.) Az utolsó fokozatok előtt bekeveréses hőmérséklet-szabályozás van beépítve. Érdekes, hogy nem a túlhevítő, hanem az újrahevítő utolsó fokozata a füstgáz áramlási irányban a legelső fűtőfelület.
 
2.184. ábra. Többnyomású kazán fűtőfelületeinek elrendezése [2.126]
 
A táptartály fűtésére nem önálló fűtőfelületből, hanem a kis nyomású túlhevítő(!) után történik gőzelvétel, a maradék a közép- és kis nyomású turbinaházat összekötő átömlő vezetékbe kerül bekeverésre. A középnyomású és a nagy nyomású tápvíz-előmelegítő első fokozatának fűtőfelületei párhuzamosan vannak elhelyezve, a két nyomásszintet azonos tápszivattyú (közbenső megcsapolással) szolgálja ki. Az utolsó fűtőfelület a gőz-körfolyamat kis nyomású tápvíz-előmelegítője, amellyel a füstgázokat 80 °C-ra hűtik le. A fűtőfelületek a vázolt sorrendben vannak egymásra függesztve. Az ábrától eltérően a három nyomásszintű, függőleges kazánoknál általában csak a nagy nyomású és a kis nyomású kazándobok vannak azonos oldalon (rendszerint mellső falon), a középnyomású dob helye, a magasság csökkentésére, a kazán ellentétes oldalán (hátfalon) van.
 
A fűtőfelületek alátámasztása: A vízszintes kazánelrendezésekre is érvényesek a függőleges elrendezésre ismertetett gyártási, helyszíni szerelési, költségcsökkentési megfontolások, ezért általában keskeny, magas kazánokat építenek. A nagyobb magasság a természetes cirkuláció szempontjából is előnyös. A rendszerint függőleges csövekből álló fűtőfelületek alsó végükön kereszt- vagy hosszirányú kamrákba csatlakoznak, amelyek párnalemez közbeiktatásával vagy anélkül, bölcsőlemezeken támaszkodnak. A kazán súlyát e bölcsőlemezek továbbítják az alapkeret, az alapozás felé. A rezgések minimalizálására a vízszintes elrendezésű kazánoknál is elválasztó lemezeket kell alkalmazni a füstgázcsatorna szektorokra osztására. A csőkötegek alsó és felső végén, e rezgéscsillapító elemektől függetlenül is, célszerű a soros vagy sakktáblás osztással áttört csőtartó lemezek használata, amelyek a füstgázjáratot is lehatárolják. A csőkötegek felett elhelyezett kamrákat csak esetenként támasztják alá külön a füstgázjáraton kívül álló acélszerkezettel, kazándobok esetében a nagyobb átmérőjű ejtőcsövekkel (2.185. ábra). Gőzbekötő csövekkel vagy külön acélszerkezettel történő alátámasztás is szokásos. A blokkosított fűtőfelületek ez esetben is a gyártóművekben kerülnek összeállításra, szállításuk vízszintesen történik és a helyszíni szerelés során állítják függőleges helyzetbe őket. Erre tekintettel az egyes csőkötegek merevítését úgy kell kialakítani, hogy a rakodás, szállítás, fekvő helyzetből álló helyzetbe forgatás során ne szenvedjenek élettartamot befolyásoló károsodást, a szükséges függesztési, forgatási pontok rendelkezésre álljanak és ezek teherbírása megfelelő legyen.
 
Vízszintes kazánszerkezet: A vízszintes elrendezésű kazán is, mint azt a 2.185. ábra mutatja, a diffúzort vagy keresztidomot követő dilatációs hézag után, átmeneti idommal kezdődik. Ez elsősorban magassági irányban húzza szét a füstgázáramlást. Az ábrán nem tüntettük fel, de az egyenletes füstgázelosztás érdekében terelőlemezeket tartalmaz. Az átmeneti idom szerkezeti kialakítása hasonló a függőleges elrendezésű kazánok átmeneti idomához: legbelül a füstgázáramlás irányában átlapolt hőálló páncélzat, majd hőszigetelés, gáztömör lemezcsatorna (szükség szerint belső, külső merevítő bordákkal), merevítő bandázskeret [2.132]. Az átmeneti idom feneke az esetleges kondenzátum elvezetéséhez, illetve a szintkülönbségek kiegyenlítéséhez ferde.
 
2.185. ábra. Vízszintes elrendezésű hőhasznosító kazán
 
A vázolt kazán egy nyomásfokozatú. A legelső fűtőfelület ez esetben is túlhevítő. Az ábrán az összekötő csővezetékeket, közbenső befecskendezést is jelöltük. A következő a recirkulációs áramlást (2.93. ábra (a)) is lehetővé tevő, nagy átmérőjű ejtőcső-rendszerrel kialakított természetes cirkulációjú elgőzölögtető, majd a vízhevítő következik. Minden fűtőfelület az alsó kamrákon, csőmerevítéseken támaszkodik, felfelé tágul. Az elgőzölögtető felett elhelyezett dob alátámasztására több megoldás terjedt el. A kazán hosszmetszetét ábrázoló vázlat olyan megoldást mutat, amelynél a dobot a kétoldalt elhelyezett nagy átmérőjű ejtőcsövek támasztják alá (hagyományos kazánoknál ilyen kialakítást a 2.50. ábra mutatott). Ennél a gőzbekötő csövek rugalmas kialakításúak, a kazándobhoz sugárirányban csatlakoznak. A 2.185. ábrán (a) vázolt megoldásnál a kazándobot az elgőzölögtető csőrendszer felső kamráira támaszkodó függőleges – a kazándobhoz nem sugárirányban csatlakozó – gőzbekötő csövek tartják. Utóbbi a „Garbe”-lemezes csőcsatlakozás (2.8. ábra) modern megoldásának is tekinthető. Ezek a megoldások nem igényelnek teherhordó állványzatot, az ilyen kazánok csak a kazán tetején lévő ellenőrző, kezelőhelyek kiszolgálását, kezelőszemélyzet biztonságos közlekedését lehetővé tevő, könnyű állványzattal építhetők. Ennek ellenére nem önhordó kivitelben is készítenek kazánszerkezeteket, ezeknél a kazándobok külön állványzaton, lábazatokon támaszkodnak, és az elgőzölögtetők rugalmas gőzbekötő csövekkel csatlakoznak. A természetes cirkuláció szempontjából kedvező, akár 10–20 körüli keringési számot is biztosító, nagyobb geodetikus magasságkülönbségek ellenére a biztonságosabb gyors indítás érdekében vízszintes elrendezésű kazánoknál is alkalmaznak kényszerített keringtetést.
A vázolthoz hasonló magas, függőleges csőrendszereknél a legnagyobb nehézséget a víztelenítés, illetve a légtelenítés (kifúvatás) jelenti. Ugyanis amennyiben a csövek a 2.185. ábra túlhevítőihez hasonlóan nem rendelkeznek alsó kamrákkal (csőívekkel fordulnak), a csövekben (például a kazán lehűlésénél kondenzáció hatására) összegyűlő víz a berendezés indítása előtt nem ereszthető le, hanem csak jelentős dobnyomás esetén a gőzvezetékhez csatlakozó szabadra menő vezetéken fúvatható ki. Ez amellett, hogy lassítja az indítást, hőmérsékletugrásokat is eredményezhet, ami a berendezés idő előtti meghibásodását okozhatja. Hasonlóan, felső kamrák nélküli tápvíz-előmelegítő csőkígyóknál a feltöltésnél a csőrendszerben visszamaradhatnak légzsákok, átmeneti üzemállapotokban gőzdugók képződhetnek, amelyek vízoldali lengésekhez vezethetnek. Ezek elkerülésére mind a túlhevítőknél, mind a tápvíz-előmelegítőknél célszerű lehet a csővégek szükség esetén egyedileg üríthető, légteleníthető kamrákkal történő összefogása, és kamraösszekötő csövekkel történő sorba kapcsolása, amely nyilvánvalóan drágább, de üzembiztosabb konstrukciót eredményezhet. Ennél olcsóbb megoldást eredményezhet a 2.185. ábrán (b) vázolt, önhordó kivitelű vízszintes csőkígyókból kialakított túlhevítő, tápvíz-előmelegítő felület. A víztelenítés, légtelenítés a függőleges kamrákból történhet.
A vízszintes elrendezésű kazán nemcsak magassági irányban, hanem vízszintesen, hosszirányban is jelentősen tágul (egy ~10 m hosszú kazán átlagosan 350 °C hőmérséklet-változás hatására bekövetkező hosszváltozása 35–40 mm), így a fűtőfelületeket úgy kell alátámasztani, hogy a kazán fixpontjához képest szabadon elmozdulhassanak. A korszerű konstrukcióknál a nyomástartó rész és a nyomástartó füstgázcsatorna egymástól függetlenül mozoghatnak [2.132]. A fűtőfelületeket követő átmeneti idomot is a szabad elmozdulást lehetővé tevő dilatációs hézaggal kell csatlakoztatni a külön alapozott kéményhez.
 
Természetes cirkuláció, kényszerített keringtetés, kényszerátáramlás: Mint korábban utaltunk rá, a gázturbinák utáni hőhasznosító kazánok mind vízszintes, mind függőleges elrendezés esetén kialakíthatók természetes cirkulációval is. A körfolyamat hatásfoka szempontjából ez a legkedvezőbb megoldás, mivel a keringtetőszivattyúk teljesítményigénye csökkenti a kiadható teljesítményt. A keringtetés és a kazán szempontjából lényeges körülmény, hogy míg a hagyományos kazánoknál a tüzelés teljesítménye a vízoldali folyamatokhoz, szerkezeti elemekben kialakuló hőmérséklet-változásokhoz illeszthető, hőhasznosító kazánoknál a füstgáz hőmérséklet-változását a gázturbina üzemállapota, teljesítményváltozása határozza meg. Indítás során a hagyományos kazánokét lényegesen meghaladó hőmérséklet-növekedések léphetnek fel. Ehhez járul, hogy Európában az időjárásfüggő megújuló energiaforrások erőltetett alkalmazása következtében gyors terhelésváltoztatásokkal, napi többszöri indítással kell számolni, úgynevezett alaperőművi üzemvitelre hagyományos berendezések nem tervezhetők. Emiatt a hőhasznosító kazánokat is gyakran változó üzemvitelre kell kialakítani. Ebből a szempontból a legfontosabb a szerkezeti elemekben kialakuló hőfeszültségek minimalizálása. A legnagyobb hőfeszültségek a vastag falú szerkezeti elemekben, különösen a kazándobokban lépnek fel. Ezért a hőhasznosító kazánoknál a kazándobokat a falvastagság csökkentésére a hagyományos kazánokhoz viszonyítva jobb szerkezeti anyagokból készítik, de még így is az indulás után a gázturbinát a cirkuláció stabilizálására, ezzel a falhőmérsékletek kiegyenlítődésére – egy berendezés nagyságtól függő – átmeneti időre minimális terhelésen kell járatni. A várakozási idő, felterhelési sebesség meghatározása „dobszonda” (7.3. fejezet) alapján történhet. A kényszerített keringtetés, stabil cirkulációval, az indítást követően azonnal hozzájárul a kazándobok egyenletesebb felmelegedéséhez, így a nyomástartó részek élettartama szempontjából kedvezőbb feltételeket garantálhat. (Ugyanakkor hátrányos lehet a rosszul lezárt, átszellőzött kazán forrcsöveiben lehűlt víz meleg kazándobba történő esetleges gyors visszaforgatása.)
 
2.186. ábra. Kényszerátáramlású elgőzölögtető [2.133]
 
További jelentős indítási sebességnövekedés a kazándobok elhagyásával, kényszerített átáramlás alkalmazásával lehetséges [2.133]. Egy vízszintes elrendezésű hőhasznosító kazánnál alkalmazott megoldás vázlatát a 2.186. ábra mutatja. A csőelrendezés a 2.104. ábrán (a) bemutatott Benson-típusú emelőcső – külső ejtőcső kapcsolásnak felel meg. Az emelőcsöveket a fűtött bordás csövek képezik. A kilépő fokozat felső kamráiból a gőz-víz keverék a vízleválasztó ciklonokba kerül, amelyből a leválasztott víz a nívóedényen keresztül a tápszivattyú előtti keverőedénybe vezethető vissza. A kazándobnál lényegesen kisebb átmérőjű, falvastagságú vízleválasztók, nívóedények a dobos kialakításhoz képest sokkal gyorsabb felfűtést, terhelésváltoztatást engednek meg. Az egyes emelőcső-szakaszok csőszáma a megengedett falhőmérséklethez szükséges tömegáram-sűrűségnek megfelelően változtatható. Megjegyezzük, hogy a hőhasznosító kazánoknál előforduló füstgázhőmérsékletekből adódóan a csőfal átégésével nem kell számolni. Ugyanakkor a rövidebb, kisebb ellenállású elgőzölögtető szakaszok áramlásának stabilitását, egyenletességét gondosan ellenőrizni, instabilitás veszélye esetén – ennek elkerülésére – a kényszerített átáramlásnál ismertetett megoldásokat alkalmazni kell. Az áramlás egyenletességének biztosítása érdekében, fojtóelemek beépítésére esetenként még („rövid”, kis ellenállású) kényszerített keringtetésű elgőzölögtetőknél is szükség lehet. A hivatkozott közlemény alapján a kazándobok elhagyásával, kényszerített átáramlással, mintegy 30 perc alatt csaknem a névleges terhelés is elérhető. Ehhez nemcsak a nyomástartó szerkezeti elemeket, hanem a kazán burkolatát képező füstgázcsatornát is a gyors hőmérséklet-változások, elmozdulások károsodásmentes elviselésére alkalmas kivitelben kell elkészíteni.
 
Póttüzelés alkalmazása, kialakítása: Mint utaltunk rá, esetenként a hőhasznosító kazán gázturbinától független üzemeltetési lehetősége, a kazán teljesítményének, paramétereinek, rendelkezésre állásának gázturbinától történő függetlenítése póttüzelést tesz szükségessé. Az igények sokfélesége miatt erre is nagyon sokféle gyakorlati megoldás alakult ki. Két irányzat azonban jól megkülönböztethető:
  • A póttüzelésre csak a gázturbina működése során, a felhasználó által igényelt gőzparaméterek, gőzteljesítmény biztosítására kerül sor. Ez esetben rendszerint a füstjáratokba beépített, úgynevezett csatornaégőket alkalmaznak.
  • A póttüzelésre a gázturbina működésétől függetlenül, a felhasználó gőzigényének esetleges független biztosítására van szükség. Ez esetben külön tűzteret kell kialakítani, ventilátoros levegőellátást, tüzelőberendezést kell beépíteni. Olyan megoldása is ismert, amikor a tüzelőberendezés mind füstgázzal, mind ventilátoros levegőellátással üzemeltethető, megfelelő fűtőfelület-kialakítás esetén a kazán teljesítményét lényegesen megnövelve [1].
 
2.187. ábra. Füstcsatornába beépíthető póttüzelő berendezések [2.130, 2.131]
 
Füstjáratokba beépített póttüzelő berendezések: Ilyen póttüzelő berendezéseket mind vízszintes, mind függőleges elrendezésű hőhasznosító kazánoknál alkalmaznak. Olyan megoldás is szokásos, amikor a függőleges elrendezésű kazánnál a diffúzor után az átmeneti idom elejére építik be [2.130] a póttüzelő berendezéseket. Külön frisslevegő-hozzávezetés nélkül működnek, mivel a gázturbinákból kiáramló füstgáz oxigéntartalma (a gázturbina előtti hőmérséklettől, illetve a lapáthűtésre felhasznált közegáramtól függően) 14–16% között van.
Csatornaégők alkalmazása esetén U alakú, alul a „maglevegő” beáramlására furatokkal áttört csatorna belsejében, hosszirányban cső fut végig, amelynek furatain áramlik ki a póttüzeléshez felhasznált földgáz. Így előkevert, turbulens gázláng alakul ki. A füstgáz áramlási sebessége az égők közötti közökben ~30 m/s körül is lehet. A csatornaégő vonalteljesítménye max 1,4 MW/m, általában 1:5 teljesítménytartományban szabályozható, maximális hosszúsága a 2,2 métert nem haladhatja meg [2.131]. Beépítésénél különös gondossággal kell eljárni:
  • Figyelembe kell venni, hogy a hőhasznosító kazán határolófalai általában hűtetlenek, így a póttüzelés utáni 650 °C füstgázhőmérsékletet nem szabad túllépni és a határolófalak belső hőszigetelését meg kell erősíteni, vagy – a 2.187. ábra (a) jobb oldalán vázolt megoldáshoz hasonlóan – az elgőzölögtető körbe kapcsolt membránfalas kialakítású hűtött csatornarészt kell kialakítani, ami a költségeket lényegesen növelheti.
  • A határolófal sérülésének megelőzésére az égők mellett minden oldalon legalább 0,5 m-es távolságot kell tartani, amelyen a keresztüláramló, hidegebb füstgáz részben védőréteget képezhet.
  • A keresztmetszeti hőterhelés korlátozására az égőket egymástól 0,5 m-nél nagyobb távolságra kell elhelyezni.
  • A póttüzelés után a legelső fűtőfelület legalább 3 m távolságra legyen. A felületet (rendszerint túlhevítő, újrahevítő kilépőfokozatot) a bordák revésedésének elkerülésére célszerű sima csőből készíteni (a [2.131] irodalom póttüzelésnél csak 500 °C bordaperem-hőmérséklet alatt javasolja bordázott csövek alkalmazását), felfüggesztéséhez (függőleges elrendezésű kazánoknál) indokolt hűtött (általában a nagy nyomású fokozat tápvíz-előmelegítő felületének részét képező) függesztőcsövek alkalmazása. A füstgázhőmérséklet csökkenésével a függesztőcsövek terhelésüket az általánosan alkalmazott, lemezből készült tartóelemeknek adják át és kivezetésre kerülnek a füstjáratból. Megoldás lehet a bordázott túlhevítőket árnyékoló csőrács beépítése is [2.168].
 
Különleges esetekben (például a [2.137] irodalomban ismertetett berendezésnél) kettős póttüzelést is alkalmaznak. A hivatkozott esetben az első csatornaégő-sor még a vízszintes szakaszban, a diffúzor után van beépítve, és a leírás szerint a füstgázokat ~526 °C-ról 600 °C-ra melegíti. A nagy nyomású előmelegítő után elhelyezett második égősor névleges üzemállapotban 213 °C-ról 452 °C-ra növeli a hőmérsékletet.
Ritkábban alkalmazzák az úgynevezett tányérégőket, amelyek vázlatos kialakítását, elrendezését [2.130] alapján a 2.187. ábra (b) mutatja. Ezen égők felületegységre eső teljesítménye általában nagyobb a csatornaégőkénél, ezért a füstcsatornafaltól (>1 m), az első fűtőfelülettől nagyobb távolságot kell tartani. A hivatkozott példánál ennek biztosítására az égők a vízszintes csatornaszakaszba, a diffúzor után kerültek beépítésre.
 
Tűztérbe épített póttüzelő berendezések: A hőhasznosító kazánok gázturbinától független működése csak hűtött tüzelőterek, frisslevegővel is működtethető tüzelőberendezések alkalmazásával biztosítható. A membránfalas kialakítású, általában természetes cirkulációjú hűtött tűztér, még a függőleges elrendezésű hőhasznosító kazánoknál is, a leggyakrabban vízszintes átáramlású, de fenéktüzeléssel, kényszerített keringtetéssel [2.135] is készülnek póttüzelések. Az égők a tűztér homlokfalára (fenéktüzelésnél a szokásos emelkedéssel vezetett fenékfelületre) vannak beépítve. A lángsugárzás hatásának megelőzésére, a füstgázok kellő lehűtésére a tűztér végén csaknem minden berendezésnél csőrács van beépítve (2.188. ábra (a)). A gázturbinára megengedett nyomásveszteségtől függően két alapvető változat szokásos:
  • A torlasztófalba épített póttüzelő berendezéseknél az égők mintegy a gázturbina füstgázáramával párhuzamosan vannak beépítve. A füstgáz égőket megkerülő hányada csőrácson át lép a tűztérbe [2.135]. A csőrácsot úgy alakítják ki, hogy az általa létrehozott torlasztás az égők teljesítményének megfelelő közegáramot szállítson az égőkön keresztül (2.188. ábra (b)). A tűztér-homlokfal helyett csatornaégők alkalmazása is lehetséges [1.127].
  • A határolófalba épített megoldásnál a belépő füstgázcsatornát csaknem teljesen tömör membránfal határolja, így csaknem a teljes füstgázmennyiség átáramlik a póttüzelő berendezéseken [2.134, 2.136]. Nyilvánvaló, hogy ez esetben a kazán nyomásvesztesége az egyéb póttüzelésekhez viszonyítva lényegesen nagyobb lehet (2.188. ábra (c)).
 
2.188. ábra. Előtét-tűztér alkalmazása [2.133]
 
A tűztér méreteit az égők lángméretének, az elvárt gőzteljesítménynek, az égőtér utáni füstgázhőmérsékletnek megfelelően kell meghatározni. Égési levegőventilátor beépítésével tiszta gázturbinás, tiszta frisslevegős vagy akár vegyes üzem is lehetséges. A legnagyobb teljesítmény, illetve hőkiadás elérésére vegyes üzemmódban van mód. A tűztérbe épített póttüzelő berendezések esetén a tűzteret követő legelső fűtőfelületek általában sima csőből készülnek. Függőleges elrendezésű hőhasznosító kazán esetén a lemezből készült csőtartók helyett hűtött függesztőcsöveket kell alkalmazni.
 
NOx-mentesítés, hangtompítás, koromfúvók: A póttüzelések beépítése növeli a nitrogén-oxid-kibocsátás mértékét. A gázturbináknál a gyártók − primer intézkedések alkalmazásával − általában minden üzemállapotban garantálni tudják a légszennyezési előírások betartását. A póttüzelő berendezésekre a korlátozott csatorna-, tűztérméretek mellett az elvárások nem minden esetben teljesíthetők. Ezért a hagyományos erőművi berendezéseknél szokásos, megfelelő hőmérséklet-tartományba történő ammóniaadagolás, katalizátorok beépítése válhat indokolttá [2.138].
Utaltunk már arra, hogy a gázturbina után a zaj csökkentésére hangtompító beépítésére van szükség. Gyakori, hogy a felállítási hely igényeinek megfelelő zajszint biztosítására a hőhasznosító kazán végére is be kell építeni hangtompítót.
A gázturbinák többsége földgázzal üzemel, de jelentős számban vannak tüzelőolajat (akár biztonsági tartalék tüzelőanyagként) vagy melléktermékként keletkező hulladékgázt felhasználó gázturbinák után beépített hőhasznosító kazánok. Ezeknél különösen számítani lehet a fűtőfelületek elszennyeződésére. Ilyen berendezéseknél a teljesítményveszteség elkerülésére a felületek rendszeres tisztítására lehet szükség. Ezért mindazoknál a berendezéseknél, ahol a felületek elszennyeződése rendszeresen bekövetkezhet és az állásidőben végzett mosatásokkal az üzemszerű állapot nem biztosítható, a fűtőfelületek közé koromfúvókat (6.3.1. fejezet) kell beépíteni. Kockázatos esetekben legalább a koromfúvók elhelyezésére szolgáló tartó-, csatlakozó elemeket, nyílásokat ki kell alakítani.

Kazánok

Tartalomjegyzék


Kiadó: Akadémiai Kiadó

Online megjelenés éve: 2020

ISBN: 978 963 454 492 0

Háztartásokban, ipari üzemekben, erőművekben széleskörűen alkalmaznak tüzelőanyag elégetésével vagy más módon bevezetett hőmennyiség hőhordozó közeggel történő hasznosítására szolgáló berendezéseket: kazánokat. A könyv ezek tervezésének, üzemeltetésének, vizsgálatának szerteágazó konstrukciós, hőtechnikai, áramlástani, szilárdságtani, vegyészeti és más ismereteit foglalja össze, az egyetemi oktatásban és a gyakorlati életben is hasznosítható módon. Az elméletet élő gyakorlattal ötvözve elsősorban erőműi, ipari, távhőszolgáltató kazánokkal foglalkozik, de a folyamatokra, szerkezeti kialakításra, gyakorlati viselkedésre vonatkozó utalások kisebb berendezéseknél is alkalmazhatók.

Hivatkozás: https://mersz.hu/gerse-kazanok//

BibTeXEndNoteMendeleyZotero

Kivonat
fullscreenclose
printsave